广东众生睿创
发布时间:2020.08.12
浏览次数:1606 次

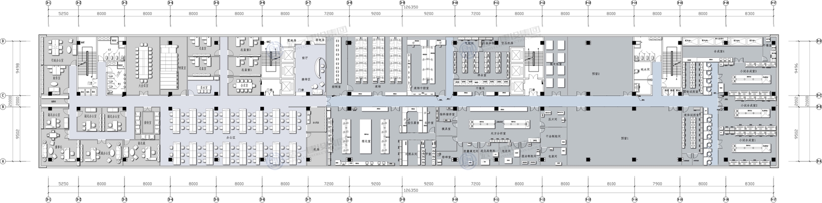
深圳宏一科技集团有限公司与广东众生药业股份公司实验室签订设计合同,该项目主要内容是实验室规划设计。广东众生药业股份公司实验室面积约3000平方米,涵盖药物理化检测、处方分析、药物合成等领域。


项目面积:3000㎡

地点:深圳

签约时间:2020年8月